Квартиры
Дома
Застройщики
Акции
Услуги
Блог
Мы
Работа
+7 988 199-61-39
Звонок бесплатный
Квартиры
в новостройках
Квартиры
в новостройках
Дома
в новостройках
Коммерция
в новостройках
Комнат
Ст.
1
2
3
4
5
6
Цена от
Район
0
ККБ + Губернский
ЗИП + Зиповская
Восточно-Кругл., + Панорама
Комсомольский
Баскетхолл
ЭНКА + Красная площадь
Академия МВД
Фестивальный
РИП + П. Метальникова
Западный обход
Немецкая деревня
Славянский + сельхоз
п. Северный
Витаминкомбинат
п. Южный
Горхутор
Черемушки + SBS
Центральный
п. Яблоновский
Новознаменский
поиск
+7 988 199-61-39
Звонок бесплатный
Новостройки
ЖК «Самолет»
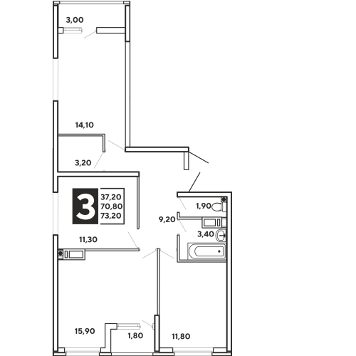
3-комн. 73.20 м²
3-комн. планировка 73.20 м² в ЖК «Самолет»
Застройщик
DOGMA
73.20
м
2
Общая площадь:
73.2 м
2
Жилая комната 1:
11.80 м
2
Жилая комната 2:
11.30 м
2
Кухня:
15.90 м
2
Балкон:
3.00 м
2
Раздельный санузел:
3.40 и 1.90 м
2
Застройщик
DOGMA
Цена по запросу
Западный обход ул., д. 39/2/7
На карте
Узнать цену в WhatsApp
Получить консультацию
В избранное
Поделиться
Другие квартиры
в этом ЖК
На карте
Инфраструктура
Панорама
Другие планировки
в этом ЖК
Студия
19.30
м²
Цена по запросу
Студия
19.70
м²
Цена по запросу
Студия
20.00
м²
Цена по запросу
Студия
20.50
м²
Цена по запросу
Студия
21.00
м²
Цена по запросу
Студия
21.20
м²
Цена по запросу
Студия
23.50
м²
Цена по запросу
Студия
24.30
м²
Цена по запросу
Студия
25.70
м²
Цена по запросу
Студия
26.60
м²
Цена по запросу
1-комн.
29.80
м²
Цена по запросу
1-комн.
36.40
м²
Цена по запросу
1-комн.
37.70
м²
Цена по запросу
1-комн.
38.20
м²
Цена по запросу
1-комн.
38.50
м²
Цена по запросу
1-комн.
38.80
м²
Цена по запросу
2-комн.
45.00
м²
Цена по запросу
2-комн.
45.50
м²
Цена по запросу
2-комн.
49.00
м²
Цена по запросу
2-комн.
49.60
м²
Цена по запросу
2-комн.
50.10
м²
Цена по запросу
2-комн.
50.70
м²
Цена по запросу
2-комн.
63.50
м²
Цена по запросу
3-комн.
73.50
м²
Цена по запросу
3-комн.
79.20
м²
Цена по запросу