Квартиры
Дома
Застройщики
Акции
Услуги
Блог
Мы
Работа
8 800 555-22-76
Звонок бесплатный
Квартиры
в новостройках
Квартиры
в новостройках
Дома
в новостройках
Коммерция
в новостройках
Комнат
Ст.
1
2
3
4
5
6
Цена от
Район
0
ККБ + Губернский
ЗИП + Зиповская
Восточно-Кругл., + Панорама
Комсомольский
Баскетхолл
ЭНКА + Красная площадь
Академия МВД
Фестивальный
РИП + П. Метальникова
Западный обход
Немецкая деревня
Славянский + сельхоз
п. Северный
Витаминкомбинат
п. Южный
Горхутор
Черемушки + SBS
Центральный
п. Яблоновский
Новознаменский
поиск
8 800 555-22-76
Звонок бесплатный
Новостройки
ЖК «Ривьера»
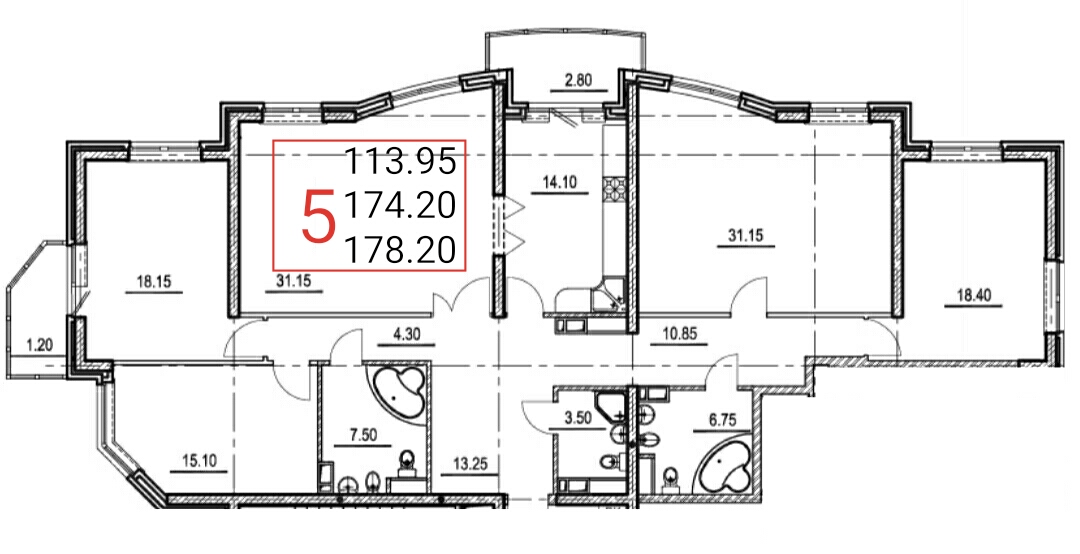
5-комн. 178.20 м²
5-комн. планировка 178.20 м² в ЖК «Ривьера»
Застройщик
Девелопмент-Юг
178.20
м
2
Общая площадь:
178.20 м
2
Жилая площадь:
113.95 м
2
Комната 1:
31.15 м
2
Комната 2:
18.15 м
2
Комната 3:
31.15 м
2
Комната 4:
18.40 м
2
Комната 5:
15.10 м
2
Кухня:
14.10 м
2
Санузел 1:
6.75 м
2
Санузел 2:
7.50 м
2
Санузел 3:
3.50 м
2
Застройщик
Девелопмент-Юг
Цена по запросу
Московская ул., д. 57/1
На карте
Узнать цену в WhatsApp
Получить консультацию
В избранное
Поделиться
Другие квартиры
в этом ЖК
На карте
Инфраструктура
Панорама
Другие планировки
в этом ЖК
1-комн.
70.25
м²
Цена по запросу
1-комн.
71.60
м²
Цена по запросу
1-комн.
81.25
м²
Цена по запросу
2-комн.
95.55
м²
Цена по запросу
2-комн.
97.20
м²
Цена по запросу
3-комн.
113.30
м²
Цена по запросу
3-комн.
116.04
м²
Цена по запросу
3-комн.
118.76
м²
Цена по запросу
4-комн.
134.05
м²
Цена по запросу
4-комн.
136.10
м²
Цена по запросу
4-комн.
137.65
м²
Цена по запросу
5-комн.
235.70
м²
Цена по запросу
7-комн.
306.35
м²
Цена по запросу
7-комн.
412.75
м²
Цена по запросу